
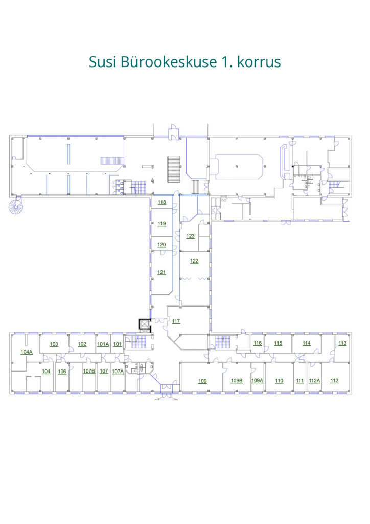
ÜÜRIPINNAD
KORRUSTE PLAANID JA ÜÜRIHINNAD
1. KORRUS
ÜÜRIHIND
- Üürihind on 6,50 – 10,00 EUR /m2 , millele lisandub käibemaks.
- Kommunaalteenuse keskmine hind on 4,00 EUR/m2, millele lisandub käibemaks.
- Üürileandja jätab endale õiguse muuta üüri- ja kommunaalteenuse hinda ning tingimusi.
Üürihind sisaldab:
- Siseviimistlus vastavalt standardsele paketile (põrandatel vaip, seinad värvitud heledates toonides);
- Valmidus liitumiseks väljaehitatud sidevõrguga;
- Võimalus kasutada hoone juurde rajatud parklat.
Üürihind ei sisalda:
- Üürniku soovil tehtavaid muudatustöid (teostamine ja finantseerimine eraldi kokkuleppel);
- Üüripindade koristusteenust (võimalik sõlmida eraldi leping);
- Kommunaalteenuste kulusid.
